Monasterios de España
Monasterio de Cañas


Introducción

  • Nombre: Monasterio de Santa María del Salvador
  • Ubicación: Cañas (La Rioja). Comunidad Autonoma de La Rioja
  • Monumento Nacional desde 1943
  • En la población de Cañas nació Santo Domingo de Silos (1000?-1073)
  • Abadia femenina cisterciense que continua activa en la actualidad
  • En la época de fundación del monasterio, la zona pertenecía al Reino de Navarra

    Historia

    El monasterio de Cañas fue creado en 1169 cuando el conde don Lope Díaz de Haro (IX señor de Vizcaya) y doña Aldonza Ruiz de Castro donarón a la Orden del Cister las tierras situadas en la villa de Cañas.

    No obstante a su fundación, el origen de este proviene de un monasterio benedictino radicado en Hayuela (Fayola o Fayuela) cerca de la actual Santo Domingo de la Calzada de la orden Benedictina, y que disfrutaban de fuero desde 1157.

    En 1170 las monjas benedictinas de Hayuela se trasladarón a Cañas y cambiaron los habitos benedictinos por los del Cister.

    La primera abadesa del este monasterio fué doña Arlequina (1169-1189) que ya era abadesa en el monasterio de Hayuela. La segunda abadesa doña Toda García (1189-1212) y la tercera doña Armezana o Emerenzana (1212-1225).

    En este monasterio profesó la hija de los fundadores Urraca López de Haro y Ruiz de Castro que llegaría a ser la cuarta abadesa del monasterio (1225-1262). Con esta abadesa se comenzó a contruir la iglesia, la sala capitular y principales dependencias (cocina, cilla, comedor etc). También un hospital en la villa, es por ello que se la conoce como la segunda fundadora del monasterio. Murió a los 92 años, despues de pasar practicamente toda su vida en el monasterio ya que ingresó en él de muy niña junto con su madre, al fallecer su padre. Su cuerpo incorrupto se encuentra en un bello sepulcro en la sala capitular.

    El 28-09-1898, ante el delegado episcopal de Calahorra, La Calzada y Logroño se hizó levantar la tapa del sepulcro hallando su cuerpo perfectamente conservado.

    Según una inscripción existente en el claustro, hoy desaparecida, se decía que el monasterio había sido edificado en honor de Santa Maria de Cañas por la condesa doña Urraca en el año 1236, utilizando como referencia el año de la toma de Córdoba.

    El nombre de doña Urraca aparece citado en el 1231 en una permuta de tierras con Juan Pérez de Ibrillos.

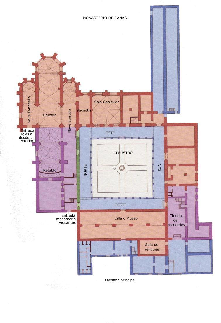
    Caracteristicas

    El monasterio se halla rodeado por un pequeño muro que dispone de un perqueño portal formado por un arco de medio punto.

    La construcción del monasterio podemos dividirla en tres fases: la primera románica (siglo XII) de la que sólo quedan escasos restos, la etapa gótica del siglo XIII que es la que imprime forma al monasterio, y las construcciones posteriores al siglo XVI con la finalización de la iglesia, y otras dependencias secundarias. A partir del siglo XVIII se construirian dormitorios y salas de trabajo que es donde las monjas residen en la actualidad. Tamibén en este siglo se terminó la construcción del claustro. De los restos románicos, quedan el muro norte del claustro que forma pared con la iglesia y el arranque de la iglesia en su cabecera.

    Ya en el siglo XX, el monasterio fué profundamente restaurado entre 1943 y 1975.

    La fachada principal queda orientada al oeste. En ella encontramos la portada de entrada al monasterio una vez traspasado el muro que lo rodea. Formada por un arco de medio punto, enmarcada por pilastras a los laterales y con un frontón redondo partido en su parte superior. La portada es de 1757. En su parte superior se adorna con dos tondos con los escudos uno de la abadia y otro de la orden cisterciense, en su centro una imagen de San Bernardo en el interior de una hornacina, y debajo otro escudo.

    Claustro De planta cuadrada, su centro está ocupado por un pequeño jardin con una gran cruz de factura reciente. Se trata de un claustro formado por dos pisos, el claustro bajo formado por una galeria cerrada con arcos de medio punto y el claustro alto también con arcos de medio punto, pero con la particularidad que estos han sido cegados y se ha dejado una pequeña ventana adintelada en el centro de cada arco.

    Como suele ser habitual alrededor del claustro se articula todas las dependencias del monasterio, inclusive la iglesia


    El ala norte hace pared con la iglesia. En esta fachada encontramos tres portadas. La mas oriental es la portada de entrada a la iglesia, mientras que la mas occidental es la entrada al claustro desde el exterior y además por la que entran los visitantes.

    La portada de entrada a la iglesia, está formada por un arco apuntado con cuatro arquivoltas, tres de ellas se apoyan sobre seis columnas acodilladas con capiteles de grumos. La arquivolta mas interna apoya sobre las jambas de la puerta. Las arquivoltas son de perfil semicircular excepto la tercera que tiene decoración de dientes de sierra. Se trata de una puerta de tradición tardorománica cisterciense.

    A su derecha pero ya en el ala este del claustro, una sencilla puerta formada por un arco apuntado da paso a la sacristia. Esta a su vez tiene otra puerta que la comunica con el interior de la iglesia.

    En el ala este encontramos la Sala Capitular como dependencia más importante de esta ala.

    En el ala sur, destacan diversas estancias, como son el comedor, la cocina y el calefactorio. Algunas de estas estancias se encuentran tapiadas.

    El ala oeste la ocupa en su totalidad la cilla (almacen de grano), que hoy ocupa el museo de arte sacro del monasterio.

    Sala capitular de mitad del siglo XIII y situada en el ala este del claustro.
    Su entrada se realiza a traves de una puerta de arco apuntado decorada con elementos vegetales. A ambos lados dos grandes ventanas de similiar composición que la portada y misma decoración.

    La portada formada por tres arquivoltas que apoyan sobre cuatro columnas acodilladas, los capiteles se decoran con pencas (decoración vegetal), mientras que las jambas están formadas por fajas o cenefas con decoración vegetal.

    Las arquivoltas de perfil semicircular alternan con cenefas formadas por decoración vegetal de diversas clases: hojas de castaño, de encina etc.

    En la cenefa del lado derecho en su parte inferior podemos observar una figura ornamental que representa un rostro humano de bruces, adornado con hojas de parra, mientras bebe vino. A esta figura se le conoce como el eterno borracho, por el tiempo que lleva bebiendo vino en la misma posición. Seguramente esta imagen debió ser una licencia que se tomó el constructor.

    Ya en su interior en el centro una gran columna con basamento octogonal y con forma de palmera, cuyas ramas se reparten hacia los cuatro tramos de bóveda de crucería que sustentan la bóveda. En los extremos triples columnillas o ménsulas en los muros. El capitel se decora con decoración vegetal de hojas de cardo.

    Los ventanales al igual que la portada por su interior tienen parecida disposición que al exterior y están adornados con motivos vegetales.

    En esta sala encontramos el sepuclro gótico de doña Urraca. De finales del siglo XIII o tal vez principios del XIV, muestra a la abadesa yacente ataviada con los atributos abaciales. Aunque la atribución es más que dudosa, se especula que sea obra de Ruy (Rodrigo) Martinez de Bureba hacia el 1270, aunque otros expertos alargan la fecha del sepulcro hasta comienzos del siglos XIV.

    La tapa tiene unas medidas de 2,45 x 0,94 metros. Sobre ella encontramos la imagen yacente de doña Urraca Lopez de Haro y Ruiz de Castro. Vestida con ropajes abaciales, en el pecho lleva un rosario, su cabeza reposa sobre dos almohadones y lleva un báculo en cuya parte superior figura enroscada una serpiente mientras que en la parte inferior lleva la cabeza de un dragón.

    También sobre la tapa en la cabecera encontramos dos pequeñas figuras que correponden a dos angeles con incensarios y a sus pies tres pequeñas figuras que representan a tres novicias sentadas y rezando.

    La urna tiene unas medidas de 2,38 x 0,88 x 0,52 metros y se apoya sobre tres parejas de animales que representan a lobos, perros y cerdos.

    En sus cuatro costados grupos escultoricos tallados representando diversas escenas:

    A los pies, la subida al cielo de la beata, donde su alma en forma de niña desnuda es elevada a los cielos acompañada por dos angeles.

    En la cabecera, cinco figuras con escenas muy naturales, una monja da consuelo a otra monja o novicia, una tercera lleva en sus manos un libro y una cuarta se arrodilla ante la figura de San Pedro que lleva en sus manos las llaves del cielo. Las interpretaciones dadas al conjunto han sido amplias a lo largo del tiempo.

    El resto de las caras muestran con precisión y considerable calidad artistica, escenas del entierro de la beata así como el pesame de las monjas, mujeres y frailes tras su muerte, con escenas naturalistas. Se trata de un gran fresco en piedra del transito del alma de la beata a Dios y su cortejo funebre.

    En el lateral derecho, vemos el funeral de la difunta, el cortejo funebre formado por un total de 26 personajes, además del feretro. Vemos figuras de abades, obispos con mitra y baculo, acolitos, gentes lamentandose que se estiran los cabellos y diversos monjes que asisten al funeral. En alguno de ellos se puede observar que son franciscanos por el cordón que llevan al cinto.


    En el lateral izquierdo, un abad da el pesame a un cortejo de 11 monjas, la última de las cuales se vuelve de una manera pícara al monje que va detras de ella. El resto de las monjas en actitudes naturales hacen comentarios entre ellas.

    En la sala capitular también encontramos cuatro laudas sepulcrales. La situada en el extremo de la izquierda según se entra a la sala, está decorada al igual que el resto de ellas con un baculo abacial. Se especula que pudiera corresponder a doña Adonza (1288-1294) o a doña Teresa Ibañez (1294-1309), abadesas que fuerón del monasterio.


    La siguiente lauda decorada en su parte superior con el baculo abacial, lleva una inscripción con el nombre de la difunta: "doña Teresa, hija de Johan Martinez de Leyba y doña Johanna de Velasco", que corresponde a la quinta abadesa del monasterio durante el periodo 1356-1358.

    La siguiente lauda también decorada con el baculo, lleva también la inscripción con el nombre de la difunta: "doña Jhoanna Lopez hija de don Lope Perez de Torquemada y doña Alduença", que ejerció su mandato entre 1332 y 1344.

    La última lauda corresponde a doña Urraca hija de don Lopez y doña Maior González, abadesa del monasterio que falleció en 1287.

    Iglesia De tres naves con crucero. Tres ábsides, el central mayor que los laterales. Los ventanales del ábside central de doble piso, están unidos por una serie de pequeñas columnas que recuerdan un conjunto de cañas.

    La iglesia de estilo gótico-cisterciense, fué comenzada en el siglo XIII quedando paralizada a la altura del transepto por motivos economicos, siendo retomadas las obras en el siglo XVI. La fábrica es de sillería.

    La iglesia dispone de un total de veinte ventanales, cubiertos con losas de alabastro blanco, lo que le proporciona una gran luminosidad, y lo que ha permitido que a este monasterio se le conozca como el monasterio de la luz.

    Las ventanas se distribuyen de la siguiente manera: diez ventanales en el ábside mayor, distribuidos en dos pisos de cinco, cuatro ventanales en la nave central (dos por cada fachada), cuatro en el transepto (dos a cada lado del crucero) y un ventanal en cada uno de los ábsides menores.

    La cabecera de la iglesia tiene tres profundos ábsides con bóvedas de crucería de finos nervios. El central más grande que los laterales. Cada uno de ellos dispone de cinco paños a partir de la imposta del que arrancan las ventanas y que corre horizontalmente a lo ancho del ábside. Por debajo de esta imposta el paramento es liso.

    El ábside central tiene dos pisos superpuestos de ventanales apuntados que cobijan los de la parte inferior tres maineles y por encima tres óculos cuadrifoliados. Los de la parte superior los vanos quedan divididos por dos delgados maineles y arriba tres óculos cuarifoliados.

    La ornamentación interior de la iglesia es escasa, sólo los capiteles de las columnas se adornan con motivos vegetales, como asi ocurre en todo el monasterio y como es práctica habitual en el Cister, ya que San Bernardo decía que la decoración figurada distraía al monje de sus obligaciones. Las bóvedas que cubren la iglesia ante los ábsides y en el transepto son de crucería, mientras que el resto obra del siglo XVI son de crucería mas complejas con terceletes.

    Sin embargo en el ábside de la nave de la Epistola se pueden ver algunos capiteles con parejas de animales enfrentados.

    En el interior del Altar Mayor, en uno de los muros laterales encontramos una credencia, que servía de soporte para las vinajeras y las abluciones. Se trata de una cavidad abierta en el muro con arcos geminados trilobulados, sostenidos por un solo pilar central.

    Preside el Altar Mayor un crucifijo gótico policromado, fechado en el siglo XIV.

    La entrada a la iglesia se realiza a traves del claustro, pero además dispone de dos portadas más, una de ellas formado por un arco apuntado se situa en el lado norte del brazo del transepto, y en la actualidad esta cegada. Otra entrada es la formada por un arco de medio punto que se situa en el mismo brazo del transepto pero en uno de los laterales y da acceso a la nave del evangelio. Esta fechada en 1525 (siglo XVI) y en su parte superior tiene tres escudos en piedra, de Castilla, de los Lopez de Haro y de los Osorio.

    A la muerte de doña Urraca Lopez de Haro las obras de la iglesia (sólo se habia llegado hasta el transepto) se paralizaron durante tres siglos, hasta que durante el mandato de la abadesa Leonor de Osorio (siglo XVI) mandó teminar la iglesia y construir el Retablo Mayor. Por cuestiones ecónomicas sólo se terminó la nave central y una de las naves laterales (la de la epistola) que permitía unir la iglesia con el claustro.

    El retablo mayor obra de Andrés Melgar y de Guillen de Holanda, es del siglo XVI, de estilo renacentista. En principio estaba situado en la cabecera en el ábside central, pero en 1975 y para dejar a la vista los ventanales fué desmontado y trasladado a los pies de la iglesia, lugar donde hoy permanece. Las obras de restauración (siglo XX) de la iglesia fuerón dirigidas por Gonzalez Mercadé.

    El retablo adopta la forma de triptico, y se compone de banco, tres pisos y ático; en el plano vertical está formado por siete calles. Fué ordenado hacer por la abadesa Leonor de Osorio (1523-1570). Es un retablo donde se combina la pintura, los relieves y las imagenes de bulto o imagineria. Tiene como tema central la vida de la Virgen María. El retablo es obra de Guillen de Holanda, mientras que las tablas pictóricas se atribuyen a Andrés Melgar.

    Las escenas que podemos encontrar en bajorrelieves en el banco del retablo son las siguientes: La Última Cena, San Pedro y San Pablo, San Juan y San Andrés y la flagelación de Cristo. En el centro el lugar reservado para el Sagrario.

    En las tres calles centrales encontramos imagenes de bulto (esculturas):

    En el primer piso: En el centro una imagen de la Virgen con el Niño del siglo XIV, policromada en el siglo XVII, a ambos lados San Benito y San Bernardo. Estas tres imagenes no son originales de este retablo.

    En el segundo piso: imagenes de San Juan Bautista, la Adoración de los Reyes Magos y el Árcangel San Miguel.

    En el tercer piso: Santa Catalina, la Asunción de la Virgen y Maria Magdalena.

    En el ático: Jesús en la cruz junto a San Juan y la Virgen.

    En las dos calles laterales de cada extremo tablas pintadas:

    Primer piso: Misa de San Gregorio, la Anuncición, la Visitación y San Bernardo. En la tabla de San Bernardo aparece una monja que es el retrato de la abadesa Leonor de Osorio, donante del retablo. Ambos personajes aparecen arrodillados rezando ante la aparición de la Virgen con el Niño.

    Segundo piso: San Sebastian, el abrazo de San Joaquin y Santa Ana ante la Puerta Dorada, la Huida a Egipto y San Roque.

    En el tercer piso: Santiago peregrino, la dormición de la Virgen, la Natividad de San Juan Bautista y el obispo San Nicolás.

    En el ático: un Ecce-Homo, San Jerónimo, la Santisima Trinidad y una Piedad.

    En este mismo lugar encontramos la sillería del coro, en la actualidad después de la restauración efectuada en 1980 ha quedado con 26 asientos, pero en el momento de su construcción a finales de siglo XVIII disponía de 32 asientos.

    También encontramos un facistol.

    A destacar siete laudas sepulcrales que corresponden a siete abadesas enterradas en el lugar: Joana Porras Veamont (+ 1594), Angela Fernández de Tobar (+ 1619), doña María y doña Joana de Zuñiga [(+ 1628) las dos en el mismo sepulcro], Magdalena Manso de Zuñiga (+ 1664), Angela Manrique de Lara (+ 1678) y Maria Margarita Ibañez de Barnuebo Jiménez (+ 1681).

    En la cabecera del templo, en el ábside lateral de la nave de la epistola, podemos contemplar una imagen gótica de la Virgen en madera policromada (siglo XIV) que ocupa un lugar destacado. En la peana de esta imagen encontramos dibujos de lobos y toros, que corresponden a los emblemas heraldicos de la familia Lopez de Haro y Ruiz de Castro, fundadores del monasterio.

    A su lado una escultura de Santo Domingo de Silos, natural como ya hemos mencionado de este pueblo de Cañas.

    A destacar que la iglesia no dispone de torre campanario, en su lugar encontramos una espadaña con dos cuerpos de campanas, de estilo barroco que se remata por un frontón triangular.

    Sala de Reliquias Uno de los motivos por lo que este monasterio es famoso, es por la cantidad de reliquias que ha acumulado a lo largo de los siglos. Desde el momento de su fundación en el siglo XII hasta el pasado siglo XX, el monasterio ha recibido innumerable cantidad de ellas, hasta el punto que ha permitido completar una sala completa para las mismas.

    Muchas de ellas se guardaban en un armario-relicario que en su momento se encontraba en el coro de la iglesia, fué mandado hacer por la abadesa Leonor de Osorio (1523-1570) hacia 1550. En el mismo se puede leer una inscripción que dice: "Estos retablos a su costa hizo doña Leonor de Ossorio, abbadesa que fué desta casa. Está enterrada junto a esta pared".

    Entre las innumerables reliquias que podemos encontrar en esta sala, citaremos:

  • Las herraduras del caballo de Santiago (traidas al monasterio por Diego Lopez de Haro, hermano de la beata Urraca, abadesa del monasterio).
  • Varias calaveras de algunas de las 11.000 virgenes.
  • Trozo de la cruz de Cristo (Lignum Crucis). Según la tradición se invoca contra las tormentas. Hay que exponer la reliquia a los vientos y recitar la frase "Tente nube, tente tu, que Dios puede mas que tú.
  • Reliquias de los mártires de Cardeña (1609)
  • Reliquia de Santa Engracia de Zaragoza (1694)

    Nota: La catalogación de las reliquias del monasterio se debe a la gran labor realizada por Antonio Cea Gutiérrez.

    Museo del Monasterio Situado en la antigua cilla o almacen de grano del monasterio, recoge la mayoría de las obras de arte que el monasterio ha acumulado a lo largo de los siglos. En esta gran sala encontramos retablos, imagenes, relieves, pinturas etc.; se trata de uno de los primeros museos de toda España que ha incorporado la fibra optica para iluminar la estancia con total garantia de conservación de las obras expuestas.

    Al mismo se accede por una portada formada por un arco apuntado muy sencillo. No hay ningún tipo de decoración en la misma, y las arquivoltas apoyan directamente en pilares adosados al muro.

    La cantidad de obras de arte es ingente, destaquemos el retablo de San Juan Bautista, anteriormente situado en la Nave del evangelio de la Iglesia. Firmado por Pedro Ruiz de Salazar (Salaçar fecid año 1643) y fué realizado a expensas de doña Juana Manrique de Lara, monja del monasterio.

    Otro retablo que también estaba situado en la nave del evangelio es el retablo de la Inmaculada, muy similar al anterior y obra del mismo artista.

    Tenemos tres retablos más, esta vez se situaban en la nave de la espistola de la iglesia, se tratan del Retablo de San Benito (barroco siglo XVI), Retablo de Santa Lucía (siglo XVII) y el retablo de San José.

    Otro retablo es el de San Pedro del siglo XVII de madera sin policromar.

    Además tenemos dos imagenes una que representa a San Juan Bautista del siglo XIV y otra de San Pedro del siglo XVIII. Enumerar innumerables lienzos de gran cantidad de artistas de primera categoria, que cierran este gran museo del monasterio.

    Notas Asi mismo hay que el destacar que las distintas dependencias del monasterio, se encuentran bien adaptadas para las personas discapacitadas, permitiendo la movilidad para aquellas personas con silla de ruedas.

    El monasterio dispone de una tienda de recuerdos, en la cual se venden diversos productos realizados por las monjas en el monasterio, destacando sobre todo los articulos de cerámica pintados a mano por las monjas, y articulos de reposteria.

    Ficha técnica

    Fecha de realizacion página: 15 de Diciembre de 2.006
    Fecha última modificación:

    Lugares de interés de La Rioja y su provincia

    Glosario o Vocabulario desde este enlace puedes acceder a un vocabulario general sobre términos de arte y en especial sobre aquellos terminos que se citan en esta página.

    Sobre los contenidos

    Nota final: Los textos aquí recogidos proceden de libros, folletos, periodicos, paginas webs y folletos turisticos en los cuales no se hace mención de titularidad alguna de derechos. Las fotos algunas estan tomadas de Internet y otras son del propio autor de la página web.
    En todo caso, si existe un titular de los derechos intelectuales sobre estos textos e ilustraciones, sobre cuya existencia no he sido informado, y desea que sean retiradas, basta con que me informen por medio del correo electrónico a mi dirección de e-mail.

    Bibliografia y Fuentes documentales:
    Monasterio de Cañas de Miguel Ibáñez Rodríguez