Monasterios de España
Monasterio de Santo Toribio de Liébana



Introducción


Nombre: Monasterio de Santo Toribio de Liébana
Ubicación: Camaleño (Cantabria). Comunidad Autónoma de Cantabria
Declarado Bien de Interés Cultural en 1953
A los pies de la montaña de La Viorna
En el valle de la Liébana
Gentilicio: lebaniegos
Regido por la orden franciscana

Historia

Aunque es de justicia reconocer que el monasterio pertenece al municipio de Camaleño, hay que decir que la entrada natural al valle de la Liébana es a través del desfiladero de la Hermida, llegar a Potes, capital comarcal de la Liébana, y a 3 kilómetros de Potes se sitúa nuestro monasterio.

El monasterio actual empezó a construirse en 1256 (siglo XIII) pero no sería hasta el siglo XV cuando las obras se dieron por terminadas. Durante los siglos sucesivos fueron efectuadas diversas reformas y ampliaciones, entre ellas la construcción del claustro en el siglo XVIII. Después de la guerra civil española (1936-1939) el organismo Regiones Devastadas efectuó una profunda remodelación del monasterio (1957-1961), a decir de los expertos bastante desafortunada y que es la configuración que ha llegado a nuestros días.

La actual iglesia se encuentra en el mismo lugar en el que se encontraba la antigua iglesia románica y esta a su vez donde se encontraba la anterior mozárabe o asturiana y sin lugar a dudas prerrománica (siglo VIII). Es uno de los primeros monasterios de Cantabria de los que hay constancia documental de su existencia.

Desde 1961 viven y se encargan del monasterio una pequeña comunidad de frailes franciscanos. La tradición franciscana del monasterio le viene dada ya que en su camino de peregrinación a Santiago de Compostela, San Francisco de Asís visitó el monasterio. La custodia del lignum crucis en el monasterio, como parte de la reliquia de la cruz de Cristo y el hecho de considerarse a los franciscanos como custodios de los Santos Lugares, hacen que de alguna manera, el monasterio forme parte de la vida de la orden franciscana.

Los orígenes del monasterio son muy oscuros, probablemente un monje natural de Turieno (población cercana al monasterio) llamado Toribio y que fue obispo de Palencia (r. 530 - 540), fundó un primer monasterio siguiendo trazas visigóticas. Por aquel entonces el monasterio era conocido como monasterio de San Martín de Turieno.

Diversas tradiciones o leyendas nos hablan de la fundación del monasterio. Una de ellas nos dice que habiendo encontrado el santo fundador resistencia entre los lebaniegos, para que le ayudaran a construir la primera iglesia del monasterio, se retiró abatido a los bosques cercanos. Mientras deambulaba sumido en sus meditaciones, topó con una feroz pelea entre un robusto buey y un gran oso, acercose a ellos y con tan solo la palabra logró el milagro de amansar la ferocidad y ganar la voluntad de las bestias, que consintieron en uncirse juntas para acarrear la piedra con que levantar el sagrado recinto. En sendos capiteles del ábside mayor de la iglesia actual se representan las toscas cabezas de esos dos animales, (el buey y el oso), motivo que se repite en otros lugares, como es en el coro, a los pies de la nave central.

Otra tradición también cuenta que el santo fundador subió al monte La Viorna y desde allí lanzó su bastón al aire, allá donde este cayó, y cumpliendo las ordenes de un ángel erigió el monasterio.

Y otra tercera versión nos dice que un oso mató al toro que ayudaba a santo Toribio en sus labores de construcción de la iglesia, y que por mediación divina el santo amansó a la fiera, y este tuvo que suplir al toro en su trabajo de ayuda al santo.


Durante el reinado del rey de Asturias Alfonso I el Católico (r. 739 - 757), y para evitar su profanación por los musulmanes, fueron traídos al monasterio de San Martín de Turieno los restos de santo Toribio († Astorga 460) obispo de Astorga, que había peregrinado a Tierra Santa en el siglo V y habría traído uno de los trozos de la Vera Cruz o lignum crucis junto con otras reliquias.

Sea como fuere, la tradición tiene dudas a la hora de identificar al actual patrono del monasterio, entre el obispo de Palencia fundador del monasterio y el obispo peregrino titular del obispado de Astorga. El jubileo se celebra el año en que el 16 de abril cae en domingo, que es precisamente la fecha en que se supone murió santo Toribio de Astorga, el 16 de abril del 460.

El primer documento escrito en que aparece mencionado el monasterio data del año 828 (siglo IX). En el siglo XI los monjes de la abadía de San Martín de Turieno seguían la regla de san Benito y entre sus tesoros se encontraba el cuerpo de santo Toribio de Astorga y el trozo de la Vera Cruz de Cristo. El monasterio pertenecía entonces al patrimonio real.

Con la llegada de los restos de santo Toribio al monasterio en el siglo VIII, el mismo empezó a ser conocido indistintamente como de Santo Toribio o de San Martín de Turieno, prevaleciendo al final el nombre actual de monasterio de Santo Toribio de Liébana. Ya en el siglo XII (1125), aparece en documentos con la denominación actual de Santo Toribio (Sancto Martino vel Sancto Toribio episcopo). A finales de ese mismo siglo, el nombre usado para el monasterio es ya de Santo Toribio pasando San Martín de Turieno a la historia.

En 1183 el rey de Castilla Alfonso VIII (r. 1158 - 1214) lo cedió a los condes don Gómez y doña Emilia y a la muerte de ambos pasó a propiedad del monasterio burgalés de Oña, que convirtió a Santo Toribio en un priorato. Con la desamortización de Mendizábal de 1835 (siglo XIX), la vinculación entre Oña y Santo Toribio desapareció.

Bien pronto y al calor de las reliquias y de la propia tumba de santo Toribio, surgieron las peregrinaciones al monasterio para rendirles culto. En 1328 el rey de Castilla y León, Alfonso XI (r. 1312 - 1350) otorgó licencia a los monjes de Santo Toribio para recaudar limosna, ya entonces existía en el monasterio un hospital de san Lázaro para atender a los enfermos que llegaban buscando la curación de su enfermedad en el contacto con las reliquias.

En 1512 el papa Julio II (r. 1503 - 1513) otorgó bula por la que quedaba establecido el jubileo de una semana a quienes llegaran al santuario los años en que, la fiesta de santo Toribio (16 de abril) coincidiera en domingo. Dicho privilegio fue ratificado por su sucesor León X (r. 1513 - 1521) al año siguiente. En 1967 el papa san Pablo VI (r. 1963 - 1978) amplió el viejo privilegio del jubileo semanal a todos los días del año comprendidos entre el de la fiesta coincidente en domingo y la del mismo patrón de la Liébana del año siguiente, tal y como hoy se aplica.

El día señalado, el obispo de la diócesis, abre la puerta del Perdón, y todos los peregrinos y durante un año, tienen la oportunidad de alcanzar la indulgencia plenaria para el perdón de sus pecados. Solo Jerusalén, Roma y Santiago de Compostela tienen esta prerrogativa. Las condiciones para ganar el jubileo son las siguientes: cruzar el dintel de la puerta del Perdón, rezar, confesarse y comulgar 15 días antes o después de haber traspasado la puerta, si se cumplen estos requisitos se habrá ganado el jubileo: indulgencia plena y perdón de todos los pecados.

Características

El primitivo monasterio estuvo rodeado de todo un conjunto de capillas y minúsculas ermitas, algunas de ellas semirupestres, que salpicaban las cercanas cumbres y laderas, y a donde se retiraban los monjes en sus penitencias. Algunas de ellas hoy en día se pueden visitar; la más destacable es la conocida como la Cueva Santa, que la tradición supone retiro cenobítico de santo Toribio.

La Cueva Santa es una construcción prerrománica, de influencia asturiana, construida en torno al año 900, que se encuentra en la ladera norte del monte de La Viorna. Consta de dos plantas, la inferior excavada en la roca sería la celda y la superior construida en mampostería, una capilla u oratorio. Según la tradición hasta esta cueva se acercaba santo Toribio a vivir en soledad. La Cueva Santa se edificó aprovechando la roca existente, se accede a ella por medio de un sencillo arco de medio punto formado por grandes dovelas que apoya en cimacios prismáticos y éstos, a su vez, sobre jambas monolíticas. El techo es de lanchas de piedra y hay una pequeña ventana al fondo. En una de las dovelas del arco de entrada aparece una cruz pometeada. Otra cruz aparece pintada en el interior de la celda. Al piso superior se accede por una escalera exterior excavada en la roca, aunque este oratorio se encuentra parcialmente derruido.

Otras capillas u oratorios son:
Ermita de San Pedro de la que quedan escasísimos restos.
Ermita de Santa Catalina, de finales del siglo XII, conserva su vieja espadaña románica y los muros góticos del presbiterio. La espadaña se compone de tres vanos apuntados, dos inferiores mayores y el tercero arriba en el centro mas pequeño; remata el conjunto un triangulo. Dispone también de una torre barroca.
Ermita de San Miguel (siglo XIII), solo se conserva el ábside o cabecera gótica, de planta rectangular, con arco toral apuntado como cubierta. La espadaña es reciente. Junto a ella se encuentra un mirador de estructura metálica (mirador de san Miguel).
Ermita de Nuestra Señora de los Ángeles, encontramos los cimientos, dos muros y una pilastra. A esta ermita pertenecía la imagen de la Virgen de los Ángeles que se conserva en uno de los ábsides de la actual iglesia del monasterio de Santo Toribio.
Ermita de San Juan de la Casería, con planta rectangular y arco toral apuntado. En la actualidad es de propiedad particular.

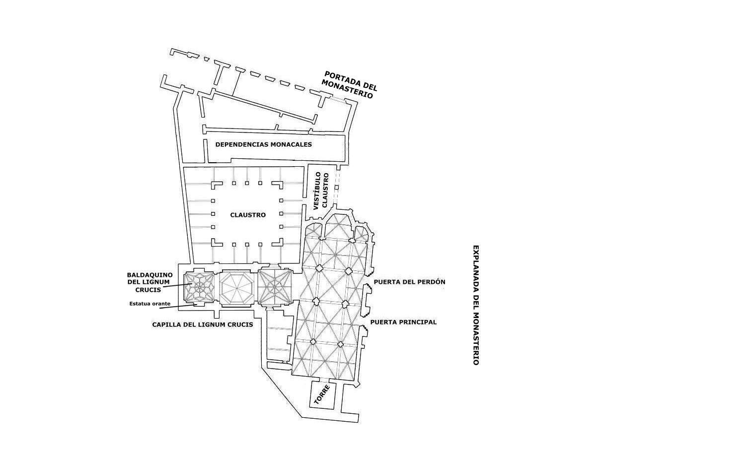
Iglesia conventual La iglesia actual empezó a construirse a mediados del siglo XIII (1256) en estilo gótico de influencia cisterciense. La iglesia se construyó de nueva planta sobre otra anterior románica y esta a su vez sobre otra prerrománica (asturiano o mozárabe), de la que se han encontrado escasos restos, no visibles en la actualidad.

Consta de planta rectangular de tres naves de cuatro tramos, crucero no sobresaliente en planta, y tres ábsides poligonales. La nave central más elevada y ancha que las laterales. Todo el templo se cubre con bóvedas de crucería. Sobre la capilla del Lignum Crucis un cimborrio sobresale entre los tejados, formando cuasi pareja con la torre cuadrada a los pies de la iglesia.

Toda la iglesia se encuentra cubierta con bóvedas de crucería de cuatro, seis y ocho plementos. Los nervios están apoyados sobre pilares de sección cuadrada con columnas entregas. Algunas llevan nervios de refuerzo. A los pies de la nave central se encuentra una torre prismática en la que se sitúa en su base el coro, y que se cubre con una bóveda de crucería de altura superior a la nave central. El órgano de la iglesia es del año 1954.

Los muros exteriores son de mampostería, salvo en el cuerpo superior del ábside mayor y en las portadas, que se emplea el sillarejo. Las dos puertas existentes son posiblemente de la iglesia anterior, aunque hay múltiples discrepancias sobre esta posibilidad.


En su fachada meridional se abren dos portadas románicas de aspecto arcaizante, apenas separadas unos metros entre si.

Puerta del Perdón Una de ellas es la puerta del Perdón (a la derecha si la miramos frontalmente) que solo se abre durante los años jubilares, es románica con tres columnas a cada lado y capiteles lisos. Es de arco de medio punto y se alza sobre un potente zócalo de sillería. Las batientes de madera están decoradas con figuras de bronce que representan a santos lebaniegos, son obra del escultor cantabro Manuel Pereda de la Reguera (* Santander 21-04-1919 † 06-04-1981). Son quince figuras que representan a diversos santos ligados al monasterio: el propio Toribio, Beato de Liébana, Tholobeo, Hetéreo, Justo, Lucrecio, Sisenando, Opazo, Sinobi, Caradoro, Opila, Euxóstomo, Prodendio y Nonnita. Fue inaugurada el 16 de abril de 1967.

Puerta principal La puerta principal es de mayor tamaño que su compañera, está formada por un arco de medio punto ligeramente apuntado rodeado de arquivoltas que apoyan en capiteles cuyas representaciones simbólicas hacen referencia a los sacramentos. Esta puerta románica, esta formada por tres columnas a cada lado con capiteles donde se pueden observar cabezas humanas, racimos de uvas y una paloma con las alas abiertas. También podemos observar dos figuras que llevan un escudo con las llaves de san Pedro. En el tímpano de la puerta, se puede ver el escudo del monasterio labrado en madera con una inscripción que dice: "Santuario del Lignum Crucis / PP franciscanos / Liébana".

Aun podemos observar en este lado una tercera puerta cegada, de la que podemos ver su silueta en el muro y que se corresponde con el último tramo de la nave principal.

Interior de la iglesia La escasa decoración de la iglesia se concentra en los capiteles. Los del ábside mayor llevan decoración figurada de cabezas humanas y de animales: el toro y el oso, que según la leyenda ayudaron a santo Toribio a construir la iglesia. Preside este ábside una gran imagen de Cristo en la Cruz entre la Virgen y san Juan, pintura en forma de icono de tradición oriental. Este icono es obra del pintor Tonino Conti Angeli y fue un regalo del papa Benedicto XVI (r. 2005 - 2013) al monasterio.

En el ábside del lado de la epístola (derecha) se venera la imagen de Nuestra Señora de los Ángeles del siglo XVII, talla en madera de nogal no policromada. Sobre el ara arca de madera policromada de factura reciente. En el frontal del arca, Cristo Pantocrátor con el tetramorfos (los cuatro evangelistas) y a su alrededor los doce apóstoles.

El ábside del lado del evangelio (izquierda) está ocupado por la escultura yacente con la efigie idealizada de santo Toribio, realizada en madera de olmo de Burgos en el siglo XIV. Conserva restos de policromía original. Esta bastante deteriorada ante la costumbre de los peregrinos de arrancar astillas como amuletos. Esta imagen está documentada en el monasterio al menos desde el 1316 y mide 170 cm. de largo por 57 cm. de ancho.

Una pila bautismal del siglo XVII-XVIII en uno de los extremos de la iglesia, es otro de los elementos destacados del interior de un edificio, que, las desamortizaciones vaciaron de contenido. Las vidrieras que hoy día podemos ver son recientes, obra del cantabro de Barcena de Pie de Concha, Tomás Sáiz Castillo. Otro de los elementos curiosos de este monasterio y de su iglesia es el órgano, situado a los pies del templo en un coro alto.

La capilla del lignum crucis Lignum crucis es el nombre que recibe cualquier trozo de madera perteneciente a la cruz donde fue clavado Cristo. El lignum crucis que se conserva en Santo Toribio, corresponde al brazo izquierdo de la Santa Cruz, quedando integro el agujero sagrado donde clavaron la mano de Cristo. Es uno de los pocos lignum crucis que la iglesia católica admite como auténtico, y es el trozo más grande de la cristiandad.

Como llegó este trozo de madera al monasterio se desconoce, pero casi con toda seguridad vendría junto con los restos de santo Toribio de Astorga para escapar de la invasión musulmana en el siglo VIII. La primera constancia escrita de la presencia de la reliquia en el monasterio lebaniego se encuentra en un inventario realizado en el año 1316. En el siglo XVII los monjes benedictinos dividieron en dos partes el madero, colocándolo en forma de cruz e introduciéndolo en un relicario con la misma forma. Hoy día la reliquia puede ser besada a través de una abertura del relicario.

Para albergar esta preciosa reliquia, se construyó en el siglo XVIII una capilla conocida como capilla del lignum crucis. La reliquia que se encuentra depositada en su relicario se encuentra protegida en el interior de un baldaquino. La capilla del lignum crucis se añadió a la iglesia por su fachada norte y está realizada en estilo barroco. Su construcción se atribuye al arquitecto de origen vizcaíno Juan Bautista de Arbaiza que la levantó entre 1718 y 1721 siendo prior del monasterio fray Isidoro de Plaza (r. 1717 - 1721). La capilla fue costeada por Francisco Gómez de Otero y Cossío (* Turieno, Cantabria 12-04-1640 † Bogotá, Colombia 29-11-1714), arzobispo de Santa Fe de Bogotá que legó a su muerte 12.000 pesos de plata para su construcción. El prior Isidoro de Plaza era el albacea testamentario del arzobispo colombiano que dejó parte de sus bienes para invertirlos en la capilla de la Vera Cruz de Santo Toribio.


A la capilla se puede acceder bien por una puerta acristalada situada en la nave del evangelio de la iglesia, bien por otra más sencilla desde el claustro. La capilla está formada por una planta rectangular de una sola nave, de tres tramos de anchura y longitud similares (la más profunda, la del presbiterio es algo más pequeña). El tramo central se corona con una cúpula con tambor apoyada sobre pechinas, que transforma el espacio cuadrado en octogonal, como fácilmente puede apreciarse, vista desde el exterior coronando la capilla. Toda la decoración escultórica incluidos los relieves de la cúpula y pechinas son obra atribuida Antonio Borja Zayas (* Sigüeza, Guadalajara ca. 1660 † 1730).

De los tres tramos ya hemos dicho que central se cubre con una cúpula, mientras que los otros dos se cubren con bóvedas de crucería gótica, de terceletes y combados. La del presbiterio lleva la clave decorada con el escudo del monasterio y se cierra con una bóveda de nervios muy elaborada. La cúpula octogonal tiene en sus plementos ocho cartelas barrocas y cuatro óculos u ojos de buey. A un nivel inferior encontramos un pequeño zócalo con tarjetas con inscripciones alusivas al lignum crucis: ecce lignum vitae (he aquí el leño de la vida), ecce vexillum redempnis (he aquí el estandarte de nuestra redención), ecce baculum David (he aquí el báculo de David), ecce virga Moysi (he aquí la vara de Moisés), ecce scala coeli (esta es la escalera del cielo), ecce arca Noe (este es el Arca de Noé).
Más arriba en el tambor, un cuerpo con cuatro ventanas muy amplias que alternan con cuatro escudos de armas de España y del monasterio y que permiten la única iluminación de la capilla.

La capilla se encuentra sostenida por grandes pilastras angulares que abren arcos de medio punto. Sobre éstos se apoya el cimborrio en el que se pueden apreciar las pechinas con los relieves de los cuatro evangelistas dentro de guirnaldas ovaladas, junto con amorcillos y decoración exuberante propia del barroco, como son águilas picando uvas y frutos, elementos simbólicos de la Gracia y la Eucaristía, junto con signos de la Pasión (corona de espinas, la columna, la escalera, el martillo, el látigo, las tenazas, la caña y la lanza). También encontramos motivos heráldicos que se repiten en partes de la cúpula.

Tras el arco norte, la capilla se prolonga en otro tramo más bajo que es donde se guarda y se expone el baldaquino con el lignum crucis reliquia fundamental del monasterio de Santo Toribio. Es una cruz de plata dorada del siglo XVII que ha sido muy modificada a lo largo del tiempo y que guarda los fragmentos de madera de la cruz de Jesucristo.

También financiado por el arzobispo Francisco Cossío se construyó el templete o baldaquino donde se guarda el relicario. Se trata de una construcción octogonal de dos cuerpos de madera dorada, cúpula plateada y remate final con una pequeña estatuilla de santo Toribio. El conjunto se levanta sobre un altar de piedra, la reliquia está protegida e iluminada tras una reja de metal.

El lignum crucis fue cortado en dos trozos en el siglo XVII para darle forma de cruz. Se guarda en un estuche de plata sobredorada de estilo gótico y ornamentada con relieves de plantas y animales que abrazan las imágenes de los evangelistas. El origen de este relicario se remonta a 1679 (siglo XVII) y ha sido reformado sucesivamente hasta tiempos recientes. Desde el siglo XIX se conoce el nombre de los orfebres Ángel Janarelli, Antonio Ferrari y Jesús Nieto que realizaron algunas de las últimas intervenciones en la cruz.

A la izquierda de la nave (lado del evangelio) encontramos el cenotafio barroco (monumento funerario) con la estatua orante del mecenas de la capilla: Francisco Gómez de Otero y Cossío. Insistir en que se trata de un monumento funerario ya que los restos del arzobispo no se encuentran aquí, fue enterrado en la catedral de Bogotá. Es obra atribuida a Antonio Borja Zayas, aunque también suena como autor el nombre de Juan Félix de Camporredondo (* Sobremazas, Cantabria 1677 † Calahorra, La Rioja 1744). En la base del monumento una inscripción dice: "EL YLLmo Sr. D. FRANco DE OTERO / Y COSSIO ARZBPO. PSDTE GOVOR, / Y CAP. N Gl. DEL NVEBO RNO DE GR/NADA. GRAN BIENHECHOR DE STOO". El conjunto escultórico se encuentra en el interior de un arcosolio con el escudo del personaje, en el muro frontal encontramos otro arcosolio de iguales características, solo que este permanece vacío. Se da la circunstancia que durante la Guerra Civil (1936-1939), la escultura sufrió daños y hubo de ser reparada, así la cabeza y las manos son reconstrucciones realizadas a mediados del siglo XX.

En 1958 se llevó a cabo un estudio sobre el trozo de madera y se llegó a la conclusión que se trata de un fragmento de árbol que crece en Palestina y su antigüedad puede remontarse a dos mil años. La especie botánica de la madera es cupressus sempervivens (un tipo de ciprés). Las medidas del leño son de 635 mm. el palo vertical y 393 mm. el travesaño, con un grosor de 40 mm. y es la reliquia más grande conservada de la cruz de Cristo, por delante de la que se custodia en San Pedro del Vaticano.

Claustro En el siglo XVII se renovó y se amplió considerablemente el monasterio, fue entonces cuando se levantó el actual y sobrio claustro (1669-1673) de tradición herreriana, sobre otro anterior que a decir de las crónicas era muy viejo. Dos grandes arcos apuntados abiertos a la explanada exterior, dan paso a un vestíbulo cubierto, que da acceso al claustro a través de otro arco apuntado, a donde también llegaron las restauraciones del siglo XX, que hicieron desaparecer las ventanas dobles ajimezadas que se encontraban sobre la entrada. En uno de los muros del vestíbulo que da al interior se puede ver un bajorrelieve que el escultor Jesús Otero Oreña (* Santillana del Mar, Cantabria 1908 † Santillana del Mar 26-08-1994) dedicó al Beato de Liébana en 1973.

El claustro se levantó en un momento en que se emprendió una importante ampliación del monasterio. Es una sobria construcción cuadrangular de dos niveles y filiación herreriana. Está formado por una galería cubierta de sillería con pequeñas ventanas rectangulares que descansan sobre un corredor abierto al patio por arcadas de medio punto. En sus muros se ha colocado una serie de paneles con textos que explican diversos aspectos relacionados con la historia del cenobio. Es interesante el apartado dedicado a los escritos de Beato y posteriores ilustradores mozárabes.


Monasterio Unas nuevas reformas trajo consigo la demolición de las dependencias construidas en el siglo XVII que fueron sustituidas por un bloque de edificaciones donde se ubican las celdas de los monjes, la hospedería, cocina, refectorio, capilla y biblioteca. Lo más notable de este edificio es un escudo sobre la portada de entrada con los emblemas de los reinos hispánicos y el toisón de oro. Tiene además la piedra una inscripción con la fecha: ANNO 1614.


Beato de Liébana Beatus era el nombre de un monje del siglo VIII que profesó en el entonces todavía conocido como monasterio de San Martín de Turieno. Pocas cosas se conocen del personaje, en ocasiones se le cita como abad del monasterio sin que tengamos constancia de ello. No se sabe ni la fecha de su muerte, ni el lugar y la fecha de nacimiento, aunque se asegura que había nacido en la Liébana. Según la leyenda Beato de Liébana fue enterrado en el ya desaparecido monasterio de Valcabado, en la provincia de Palencia, cerca de Saldaña.

Beatus escribió en el monasterio hacia el año 776, un códice que lleva por título "Comentarios al Apocalipsis de San Juan" (Commentarium in Apocalypsin). El códice se hizo tan famoso y alcanzó tan gran extensión, que a partir de su publicación, este tipo de libros o códices empezaron a ser llamados beatos y el códice en particular escrito por el propio Beatus, fue llamado Beato de Liébana. Los beatos suelen ir decorados con dibujos y miniaturas de vivos colores que los hacen joyas bibliográficas que fueron copiados en gran número de monasterios hispanos durante toda la Edad Media.

Beatus de Liébana es conocido además de por otros escritos, también por la polémica que sostuvo con el metropolitano de Toledo, el arzobispo Elipando († 805). El arzobispo Elipando sostenía que Jesús era hijo adoptivo de Dios, herejía que Beatus rechazaba y que los hizo mantener una larga polémica. Esta herejía fue llamada adopcionismo y quedó definitivamente suprimida en 794. Junto con Beatus, otro monje asilado en San Martín de Turieno, Eterio, obispo de Osma, fueron en Hispania los principales detractores contra el adopcionismo.

Escribió también un himno, O Dei verbum asumido por la liturgia mozárabe, en que por primera vez en España, se defendía la idea de la predicación en la península de Santiago el Mayor, lo que fue premonición y vanguardia del casi inmediato hallazgo de la tumba del apóstol Santiago en Galicia y del origen de las consiguientes peregrinaciones jacobeas. Es por tanto a Beatus a quien le debemos la tradición tan hispana del apóstol Santiago.

También escribió el "Apologético" escrito por Beatus y por Eterio en su discrepancia con Elipando. Se trata de dos libros que pretende dar respuesta a todas las afirmaciones que el arzobispo Elipando pretendía en sus afirmaciones adopcionistas. Beatus fue además consejero del rey asturiano Silo (r. 774 - 783) y confesor de su esposa la reina Adosinda (hija del rey Alfonso I). En aquellos momentos la Liébana y el monasterio se encontraba en la territorialidad del reino de Asturias.

Ficha técnica

Fecha de realización página: 15 de mayo de 2006
Fecha última modificación: 23 de octubre de 2024

Lugares de interés de Potes

Glosario o vocabulario desde este enlace puedes acceder a un vocabulario general sobre términos de arte y en especial sobre aquellos términos que se citan en esta página.

Sobre los contenidos

Los textos aquí recogidos proceden de libros, folletos, periódicos, páginas webs y folletos turísticos en los cuales no se hace mención de titularidad alguna de derechos. Las fotos algunas están tomadas de Internet y otras son del propio autor de la página web.

En todo caso, si existe un titular de los derechos intelectuales sobre estos textos e ilustraciones, sobre cuya existencia no he sido informado, y desea que sean retiradas, basta con que me informen por medio del correo electrónico a mi dirección de e-mail.

Entre los autores que merecen especial atención destacamos el libro "Santo Toribio de Liébana" de Enrique Campuzano.