Conventos y monasterios de Valencia
Monasterio de San Miguel de los Reyes
Monestir de Sant Miquel dels Reis
Avenida de la Constitución nº 284

Alquería de Rascanya (Quarya de Rascanya) (siglo XI)
Monasterio cisterciense de Sant Bernat de Rascanya (1381-1546)
Monasterio jerónimo de San Miguel de los Reyes (1546-1835)
Presidio Nacional (1874-1966)
Biblioteca Valenciana Nicolau Primitiu (1999-actualidad)

El histórico, grandioso y actual edificio del antiguo monasterio jerónimo de San Miguel de los Reyes se halla situado bien entrado en el llamado "Camino Viejo de Barcelona" o "Camí de Murviedro" después de dejar atrás el antiguo arrabal del barrio de Sagunto de la ciudad de Valencia.

Se encuentra en el lugar que antiguamente y en plena huerta se llamaba el "llano de San Bernardo", por haber existido allí la abadía cisterciense de "Sant Bernat de Rascanya" o de la Huerta. Dicho monasterio fue fundado en el ultimo cuarto del siglo XIV, por fray Arnaldo Saranyó, abad del Monasterio de Santa Maria de Valldigna, de la que dependió la nueva casa.

El monasterio cisterciense sería construido sobre una alquería musulmana llamada "Rascanya" del siglo XI; de ahí que a este monasterio también se le conociese como "Sant Bernat de Rascanya".

El primer señor de Rascanya fue Guillém de Aguiló († 1277) a quien el rey Jaime I le hizo entrega de la alquería en 4 de agosto de 1237 según consta en el Llibre de Repartiment. Guillém de Aguiló vendió la alquería a Pedro Esplugues que se convirtió en el segundo señor de Rascanya. Un descendiente de la familia Esplugues, dividió a finales del siglo XIV los terrenos de los que era señor, a Joan Saranyó le vendió la casa de campo y la huerta y a Luis de Valeriola el poblado y el resto del terreno. Arnaldo Saranyó abad de la Valldigna, compra hacia 1371 a Joan Saranyó la casa y huerta con lo que la alquería pasa a propiedad de la Valldigna.

En primera instancia la alquería junto con una pequeña capilla se convirtió en el Priorato de Sant Bernat de Rascanya. Según algunas crónicas, durante la penúltima década del siglo XIV, mudéjares condenados construyeron los elementos básicos que permitieron albergar vida en comunidad. En 1387 Lorenzo Zaragozá, pintor altamente ensalzado por sus contemporáneos y primero de renombre afincado en la ciudad de Valencia, finalizó su trabajo en el retablo del altar mayor de la iglesia, y se pasó a la erección canónica de la abadía. A partir de entonces sería conocido como Monasterio de Sant Bernat de Rascanya o Sant Bernat de la Huerta.

El viejo monasterio constaba de una iglesia almenada de una sola nave abovedada, cinco capillas laterales a cada lado y un claustro de dos pisos alrededor de los cuales giraban las distintas dependencias que formaban el monasterio. Detrás de la iglesia se encontraba un pequeño claustro con la residencia del prior y la enfermería.

Durante las excavaciones realizadas en 1996 para adaptar el monasterio a su nuevo uso, los restos de este antiguo convento salieron a la luz y hoy día los podemos contemplar como restos consolidados en el patio norte del actual monasterio.

La muerte de fray Arnaldo abrió un periodo de tensa relación entre las casas madre e hija. El absentismo de los abades, incluso fuera de los reinos de la Corona de Aragón, llevó a una relajación de costumbres, que se acentuó con el gobierno de los abades comendatarios, clérigos o seculares, interesados principalmente en obtener beneficios económicos.

El estado de vida relajada, preludio de su extinción, fue recogido por Claude de Brosenval, secretario del abad de Claraval, en la visita que realizó en 1532. Años después, a petición de Fernando de Aragón, Duque de Calabria, personas doctas emitieron un informe que corroboraba estas impresiones, lo que finalmente impulsó al Papa Paulo III mediante una bula a extinguir en 1544 la comunidad de San Bernardo e instituir la de San Jerónimo en su lugar, todo a petición del Duque de Calabria, don Fernando de Aragón.

Después, por voluntad testamentaria de la virreina doña Germana de Foix (1488-1536), viuda primero del rey Fernando el Católico y después del marqués de Brandeburgo y junto a su tercer esposo, don Fernando de Aragón (1488-1550) duque de Calabria y virrey de Valencia, ordenaron levantar en aquel lugar un nuevo monasterio bajo la advocación de San Miguel. La intención del duque de Calabria era triple, por una parte la fundación del monasterio, la creación de una escuela de arte y teología y finalmente debía constituirse como panteón familiar.

Ambos esposos hicieron testamento dejándose sus cuantiosos bienes uno a otro en vida, y a la muerte de ambos, sus bienes y fortuna pasarían a la Orden de los Jerónimos, para la construcción del monasterio de dicha orden, ya que Germana de Foix quería ser enterrada en Valencia, en un monasterio de la citada orden. Germana de Foix fallecería en Liria (Valencia) en octubre de 1536.

En 2 de julio de 1546 los monjes jerónimos toman posesión del monasterio. Los nuevos monjes provienen del monasterio jerónimo de Montemarta en Zamora y su primer prior fue fray Antonio de Vallderraga. Para renovar el viejo monasterio se solicitaron trazas a expertos maestros: Alonso de Covarrubias, maestro de obras de su Majestad y de la Catedral de Toledo, y a Juan de Vidaña, criado al lado del Duque de Calabria y oficial también aventajado en materia de arquitectura. El primero ofreció el plan general, que tuvo siempre en cuenta la abadía existente.

Las obras comenzaron en el 1546, concretamente la primera piedra se puso el 14 de julio de 1546 bajo la dirección de Alonso de Covarrubias y se terminaron tras pasar por ella diferentes maestros en el año 1644, aunque hasta mediados del siglo XVIII se hicieron numerosos añadidos en la cripta, la iglesia, los retablos, y las balaustradas o remates del monasterio.

Poco después de la muerte de su mecenas, don Fernando de Aragón en 1550, las obras prácticamente se paralizaron, debido a largos pleitos de carácter económico, hasta que fueron reanudadas las obras en 1570, pero con una dotación presupuestaria bastante más reducida. Se hace cargo de la dirección de la obra Juan Barreda.

En líneas generales comprendía: una gran iglesia en el eje axial de una composición con dos claustros comunicados por detrás del templo mediante un corredor. Modificaciones posteriores transformaron enormemente el proyecto, sobre todo en lo formal, pero la distribución básica se mantuvo.

En 1802 y con motivo de la visita del rey de España Carlos IV y su esposa María Luisa de Parma, se construyó una portería en forma de dos torres almenadas justo enfrente de la portada principal de la iglesia; portería que en la actualidad es utilizada como punto de entrada y oficina de recepción para visitantes. En el paño que unen ambas torres y por encima de la portada encontramos el escudo de la de la Corona de España.

En los modernos jardines que anteceden al monasterio y poco después de traspasar las dos torres almenadas, encontramos una escultura firmada por el escultor valenciano José Vento González (* Quart de Poblet, Valencia 11-01-1940 † Valencia 21-03-2013), que lleva por titulo "Mujer leyendo", obra en bronce del año 2001.

También una lápida conmemorativa se alza en este lugar con el siguiente texto en valenciano, latín y castellano: Al patricio Nicolau Primitiu Gómez i Serrano (1877-1971) fundador de esta biblioteca, donada por la familia Gómez Senent para servicio de la cultura valenciana. 11-11-2005

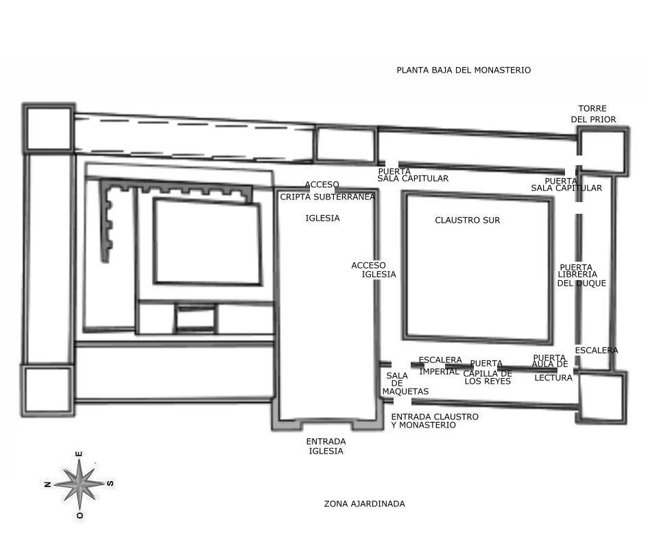
Claustro Sur

El claustro sur y las dependencias que distribuía fue el primer espacio que comenzó a construirse y se realizó entre 1546 y 1607. Los problemas económicos que suponía seguir la traza de Alonso de Covarrubias, llena de molduras, acorde con el llamado estilo plateresco, obligó a los monjes a cambiar el proyecto. En 1578 monjes jerónimos valencianos acudieron a El Escorial donde copiaron el claustro principal o de los Evangelistas ya finalizado. El claustro valenciano adaptó el clasicismo y rigor escurialense, pero con múltiples variantes. Algunas forzadas por las obras ya construidas, otras sin embargo, eran transgresiones libres del original. Desde 1578 hasta comienzos del siglo XVII, con algunas interrupciones, Juan Barreda, Juan de Ambuesa y Juan Cambra, entre otros, se sucedieron en su realización. Fotos del claustro sur

El claustro sur de San Miquel de los Reyes constituye una de las obras más relevantes de la arquitectura valenciana del Renacimiento. Se compone de dos galerías superpuestas de siete arcos de medio punto por cada lado, de orden dórico en la galería inferior y orden jónico en la galería superior. El claustro se corona por medio de una balaustrada de piedra con bolas sobre pedestales y pirámides en las esquinas.

En el centro del patio había inicialmente una fuente que a finales del siglo XVIII fue sustituida por un pozo hoy desaparecido. Alrededor de este claustro se situaban las dependencias donde se desarrollaba la vida de los monjes. En la planta baja se encontraban los servicios comunitarios como la sala capitular, el refectorio o comedor, la cocina etc. En la primera planta los dormitorios de los monjes y en un altillo superior la de los novicios. El prior ocupaba las salas situadas en la torre sur-este y que en la actualidad recibe el nombre de Torre del Prior.

Al claustro sur se entra desde el jardín por una sencilla puerta adintelada situada a la derecha de la fachada principal de la iglesia. Esta puerta nos lleva a un vestíbulo conocido como sala de las maquetas que directamente y a través de una puerta da paso al claustro. Una vez hemos entrado en el claustro, si queremos hacer un recorrido por el mismo, empezaremos por el ala que queda a nuestra derecha. Puerta de comunicación entre el claustro y el vestíbulo.

Este claustro está formado como hemos dicho por dos galerías superpuestas, al piso de arriba se accede por una escalera de las llamadas imperiales, es decir comienza con un solo tiro para dividirse más arriba en dos tiros divergentes a derecha e izquierda. Esta escalera de tipo imperial fue construida en 1600 por Joan Cambra.

La primera portada y la más grande corresponde a la escalera que sube al piso superior del claustro, la segunda puerta también da acceso a la escalera y en ella encontramos uno de los pavimentos originales del siglo XVII del monasterio. El techo de la escalera principal se cubre con bóveda de medio cañón decorada con casetones. La escalera es obra de Joan Cambra realizada entre 1601 y 1603. La portada de acceso es una gran portada adintelada flanqueada por pilastras y sin decoración.

La tercera y cuarta puerta daban acceso a la Capilla de los Reyes y al Aula de Lectura respectivamente. La construcción en esta ala del claustro entre 1874 y 1886 de talleres para los presos que ocupaban el monasterio, hizo que toda el ala fuera destruida, por lo que de las dos salas que ahora hemos comentado no quedan mas que el recuerdo y por ello se usan como salas de exposiciones temporales y no son originales.

La Capilla de los Reyes construida por Juan de Vidaña, Joan d'Ambuesa y Joan Cambra entre 1548 y 1604, era una de las estancias mas ricamente decoradas. El Altar se situaba mirando al oeste y se cubría con bóveda apoyada sobre cuatro pechinas.

El Aula de Lectura construida por Joan d'Ambuesa y Joan Cambra entre 1581 y 1601, estuvo destinada, probablemente, a alojar el aula para leer arte y teología según la idea inicial del Duque de Calabria. Se ordenaba a base de pilastras y capiteles sobre los que se apeaban los arcos que sustentaban las bóvedas.

Más adelante y en el ala que le sigue encontramos en el centro del muro, una puerta adintelada, que corresponde a la librería del Duque de Calabria. La sala fue construida entre 1581 y 1588 por Joan D'Ambuesa para albergar la importante biblioteca del Duque de Calabria. En 1603 los monjes decidieron trasladar la biblioteca a una sala del ala occidental del primer piso. En el siglo XVIII fue usada como refectorio o comedor. La traza y construcción de la portada es obra del mismo Joan D'Ambuesa quien la realizó entre 1582 y 1583. En la parte superior de la portada podemos ver el escudo de armas del Duque de Calabria. La biblioteca del duque de Calabria estaba compuesta por más de 700 volúmenes. La estancia es una sala rectangular cubierta con bóveda de arista sustentada por arcos fajones rebajados que apoyan en pilastras adosadas a la pared. En la actualidad esta sala es utilizada como salón de actos o sala de conferencias.

La siguiente puerta que se encuentra ya en la siguiente ala, pero hace casi esquina con el ala de la que venimos, da acceso a la llamada Torre del Prior. Es obra realizada entre 1571 y 1578 por Jerónimo Labal y sigue las trazas de Alonso de Covarrubias. La torre dispone de tres plantas que se comunican por una escalera de caracol. En origen serían dependencias del prior, aunque en el siglo XVIII fue utilizada como despensa del monasterio. También llegó a albergar la Sala del Tesoro del monasterio. Por su orientación al frente oriental es una de las zonas calidas del monasterio.

Al final del ala donde nos encontramos, una puerta comunica con la sala capitular, obra entre 1548 y 1578 de Alonso Covarrubias y Jerónimo Labal. La sala capitular, lugar donde se reunían los monjes para leer los capítulos de las Sagradas Escrituras y resolver asuntos internos de la comunidad, se realizó siguiendo el proyecto de Alonso de Covarrubias ya que por esta sala se comenzó la construcción del claustro sur. Las obras de restauración han permitido descubrir y restaurar las pinturas que decoran sus bóvedas. Posiblemente, la sala capitular fue utilizada en el siglo XVII como capilla mientras se construía la iglesia. Actualmente se realizan en ella exposiciones temporales.

Al lado de la puerta de la Sala Capitular encontramos un pasillo por el cual se puede acceder al Claustro Norte, pero nosotros continuamos por la siguiente ala de este claustro, para detenernos en la portada que corresponde a la entrada a la iglesia.

Sin embargo y si a pesar de ello, optamos por seguir por el pasillo en dirección al patio norte, encontraremos una portada formada por un arco de medio punto y que permite el paso a la segunda escalera de acceso al claustro alto. Esta escalera es más sencilla que la que hemos visto. Por ella además de acceder al primer piso del claustro se accede al piso donde se encontraban los dormitorios de los novicios. Construida entre 1581 y 1582 por Joan d'Ambuesa ocupa el espacio interior de la torre que se sitúa justo detrás de la iglesia. En el arranque de la barandilla podemos ver la figura de un león en piedra, es el símbolo o atributo de san Jerónimo. El techo se cubre con una bóveda decorada con casetones pintados, y en ella figura una inscripción conmemorativa alusiva a la fundación del monasterio por parte del duque de Calabria.

Claustro Sur - Primer Piso

En este primer piso se encuentran las celdas de los monjes. En el ala este, se encontraban las celdas individuales de los monjes. Sobre el dintel de cada dormitorio de los monjes, estaban escritas en unos casos el anagrama XPS y en otros IHS en ambos casos es el anagrama de CRISTO, el primero en griego y el segundo en latín (IHS = Iesus hominum salvatur). Además las celdas tenían su propia numeración, formada por una letra o una letra y un número. Las celdas disponían de balcón y ventana, escritorio, armario de obra, cama y sillas. Las celdas de esta ala fueron realizadas por Jerónimo Labal entre 1571 y 1578.

Se da la circunstancia que las celdas más solicitadas eran las situadas en la parte este, ya que estas daban al mar y la salida del sol calentaba estas habitaciones por lo que eran más confortables. Existió la idea inicial de construir un tercer piso para los novicios, pero considerando que ello quitaría luminosidad a las plantas inferiores del claustro, se decidió no construirla y que los novicios se pudieran conformar con el altillo ahora existente.

La celda del prior se encontraba en la torre situada en el ángulo sur-este del monasterio, torre conocida como del Prior. Tenía entrada por el claustro bajo a través de una escalera de caracol o directamente por este primer piso del claustro. Las dependencias del prior ocupaban las dos primeras plantas de la torre e incluían: un oratorio, el estudio y la alcoba. También era costumbre reunir el capitulo en la celda del prior. Es obra realizada entre 1571 y 1578 por Jerónimo Labal. De la obra original sólo se conserva el oratorio y un panel de azulejos que formó parte del pavimento o del zócalo de la sala. En la actualidad la celda del prior y la torre se utiliza como salas de uso exclusivo interno de la Biblioteca.

En ala sur o del mediodía, volvemos a encontrar nuevas celdas para los monjes que siguen el mismo esquema que las situadas en el ala de levante de la que procedemos. En el ala de poniente (oeste) se construyeron entre 1582 y 1604 por Joan D'Ambuesa y Joan Cambra cuatro celdas, pero en 1603 los monjes acordaron trasladar la biblioteca del Duque de Calabria que se encontraba en el piso de abajo a esta ala del claustro para lo cual realizaron las necesarias reformas. Entre 1874 y 1886 se realizaron obras de reforma en este ala para adaptarlas a su función de presidio y todo lo anterior fue destruido. En la actualidad este ala es utilizada como sala de lectura e investigación para los estudiosos que acuden a la Biblioteca Valenciana. La sala recibe el nombre de Nicolau Primitiu.

En el ángulo que forman estas dos alas, se encuentra la torre sur-oeste. Esta torre incluía dos celdas individuales y tenían acceso directo a través del claustro superior o por una escalera de caracol que corría interiormente por la torre. Las estancias fueron destruidas en las obras de reforma para su adaptación como presidio. La torre fue realizada por Joan D'Ambuesa entre 1581 y 1587.

El ala norte de este primer piso del claustro es ciego ya que comparte muro con la iglesia del monasterio.

La iglesia

La iglesia es obra de Joan Cambra, Pere D'Ambuesa (hijo de Joan de Ambuesa e hijastro de Joan Cambra) y Martí D'Orinda. Comenzada en 1601 sobre la antigua iglesia cisterciense de San Bernardo, de la cual aprovecha algunos muros, no será hasta 1623 cuando su construcción reciba el impulso definitivo, siendo concluida en 1644.

El retablo del Altar Mayor, las gradas, el enlosado del presbiterio y los retablos de las capillas laterales son barrocos del siglo XVIII. En su construcción se empleó decoración de taracea de mármol, jaspes, alabastros o marquetería con incrustación de mármoles de varios colores. Fray Atanasio de San Jerónimo realizaría el enlosado, la balaustrada, y los frentes de las gradas del presbiterio.

El Retablo Mayor es obra realizada entre 1732 y 1749 por José Cavaller y José Montana, legos del monasterio. Está realizado con taracea de mármol de diversos colores. En la parte escultórica intervino el escultor Raimundo Capuz (* Valencia ca.1665 † 1743) siendo de su mano la talla de San Miguel Arcángel que ocupa el centro del retablo.

Hacia 1625 Pere D'Ambuesa realizó la fachada de la iglesia de tres cuerpos. El primero es de orden dórico, con seis columnas, y dos nichos que albergan las estatuas de San Jerónimo y Santa Paula. Sobre la puerta hay un altorrelieve con un ángel que porta los escudos de armas de los fundadores. El segundo cuerpo es jónico, con igual número de columnas y disposición. En el centro se encuentra un nicho con una escultura de San Miguel alanceando al diablo, aunque en nuestro caso le falta la lanza, y en los intercolumnios laterales ventanas que iluminan el coro. En el tercer piso, en la calle central se enmarca una gran ventana con columnas salomónicas, corintias de estrías en espiral y pilastras cajeadas. Cada una de las calles, un piso mayor en la central, culminan con frontones semicirculares partidos, coronados por las esculturas de los tres Reyes Magos. La fachada se encuentra delimitada a los lados por dos grandes torres de sección cuadrada, leves resaltes, prominentes cornisas y balaustrada con pirámides y bolas.

Bajo la figura del rey Baltasar que corona la fachada podemos ver una estrella sobre la ventana, que quiere ser la estrella de Oriente que guió a los Reyes Magos hasta Belén.

La fachada en definitiva, forma parte de la tipología conocida como fachadas retablo, que tanta predicación tuvo en tierras valencianas, y directamente se conecta con las portadas de la Iglesia del Carmen o la Iglesia parroquial de Nuestra Señora de la Asunción en Liria (Valencia). Se considera como una de las primeras fachadas retablo del Reino de Valencia.

El Monasterio como ya hemos dicho está bajo la advocación de San Miguel y recibe el sobrenombre de los Reyes en referencia a los tres Reyes Magos que figuran en esta fachada. Al duque de Calabria le gustaba decir que descendía del rey Baltasar a pesar de que este no era negro.

La iglesia, fue construida entre 1623 y 1644 bajo las órdenes de Pere D'Ambuesa y Martí D'Orinda. Se trata de un templo de grandes proporciones con planta de cruz latina, amplia y única nave, cúpula sobre tambor circular apoyada en pechinas en el crucero, un gran coro alto a los pies casi tan grande como el del Escorial y cinco capillas laterales por lado entre los contrafuertes comunicadas entre si. La cúpula se cubre con teja vidriada de color azul.

El coro es amplio pues ocupa dos tramos del templo, ya que como la orden de los jerónimos es una orden de las llamadas contemplativas, pasaban muchas horas al cabo del día orando en el coro. En la bóveda del coro encontramos un reloj boca abajo para que los monjes pudieran saber en todo momento la hora del día. Más fotos de la cúpula de la iglesia


Mas fotos del interior de la iglesia

El interior del templo se ordena con colosales pilastras toscanas con fuste acanalado y cañas en el tercio interior sobre basas. Las capillas se abren a la nave por medio de arcos de medio punto, y sobre éstas se sitúan las tribunas flanqueadas por columnas jónicas que soportan un entablamento coronado por jarrones y frontones, alternando los segmentales y los de volutas enrolladas. Sobre estos espacios se encuentra un entablamento con ménsulas-talón resaltado sobre las verticales de las pilastras. Una bóveda de cañón con lunetos cubre el espacio. Las ventanas que se abren en los lunetos ofrecen diversidad de diseños aunque guardando la sencillez de estilo. En el siglo XVIII fueron sustituidos los antiguos retablos de madera por otros de estilo barroco realizados con jaspes, taracea de mármol, alabastro y piedra. Estos retablos son los que han llegado hasta nosotros y podemos contemplar hoy en día.

A ambos lados del Altar Mayor, insertas en los muros encontramos unas hornacinas donde debían estar los restos mortales del duque de Calabria y su esposa Germana de Foix a modo de cenotafios. En el correspondiente al duque vemos su escudo de armas y enfrente el escudo de armas de su mujer Germana de Foix.

Debajo del presbiterio de la iglesia se encuentra la cripta o panteón, realizada en 1648 y donde se dice están enterrados los cuerpos de Germana de Foix, Fernando de Aragón duque de Calabria y dos hermanas de este. La entrada a la cripta se realiza por una puerta situada en el exterior de la cabecera de la iglesia, en el pasillo de comunicación entre el claustro sur y el claustro norte.

Descendiendo por una escalera de piedra negra de Alcublas, se accede a la cripta, de pequeñas dimensiones, planta cuadrada y cubierta por bóveda de aristas. En su hastial dos altares de piedra de jaspe y mármol negro con apliques blancos realizados en 1723 por el monje jerónimo Juan Esteban de Massamagrell. A la izquierda el mausoleo de doña Germana de Foix y a la derecha el de su esposo el duque de Calabria. Ambos mausoleos son de similares características. Sobre un bloque funerario se sitúa la urna de mármol negro. En su parte superior el escudo de cada uno de los fundadores del monasterio en mármol blanco.

En principio los cuerpos de los fundadores estaban situados en la capilla mayor de la iglesia, en el lugar donde se encuentran las hornacinas vacías de la pared, pero en 1804 los cuerpos fueron trasladados a la cripta. Las esculturas de los difuntos que ocupaban dichas hornacinas, fueron realizadas en 1627 por Juan Miguel de Orliens (* Orleans, Francia 1585 † 1641) en madera de ciprés. Dichas esculturas hoy han desaparecido.

No obstante se sabe casi con absoluta certeza que los cuerpos no están en los mausoleos, ya que estos son compactos, y que los cuerpos se encuentran en el suelo de la cripta. Pruebas realizadas con aparatos de medición han comprobado la existencia de cuatro cuerpos, y por estudios realizados se ha llegado a la conclusión de que los cuerpos pertenecen a Germana de Foix, al duque de Calabria y a dos hermanas del duque.

El 29 de Septiembre, día de san Miguel, a las 10.00 horas (hora solar) ocurre un curioso hecho, y es que los rayos del sol penetran a través de una ventana realizada en el muro y marca el punto exacto donde está enterrada doña Germana de Foix y el duque de Calabria. Curiosamente el lugar que marca el rayo de luz es en el suelo de la cripta y no en el mausoleo.

Hacia la ruina ...

Aquel magnífico edificio, y sobre todo el espacioso templo, sufrió una cruel devastación durante la invasión de las tropas de Napoleón, desapareciendo valiosas obras artísticas. El monasterio fue convertido por los franceses en cuartel de artillería y la biblioteca del Duque de Calabria expoliada y quemada. Los libros que pudieron salvarse pasarían a la Biblioteca de la Universidad de Valencia.

Después, cuando la exclaustración de las ordenes religiosas del año 1835, cuadros y otras obras artísticas que se conservaban pasaron al Museo de Bellas Artes de Valencia y otras fueron vendidas a particulares.

Después de la devastación, el monasterio de San Miguel de los Reyes, estuvo en peligro inminente de desaparecer. Un particular que lo había adquirido iba a demolerlo en 1843 para aprovechar los materiales. El Ayuntamiento de Valencia, mediante informe de la Real Academia de Bellas Artes de San Carlos, acudió al Gobierno, logrando el rescate del histórico edificio.

Pero el destino fue deplorable. En un principio se intentó instalar una fábrica de tabacos, proyecto que aun cuando se insistió repetidamente, no se llevó a efecto. Después se estableció en el edificio un asilo de mendicidad y más tarde se dedicó a correccional para mujeres. Cuando se reservó a las mujeres penadas de toda España el establecimiento penitenciario de Alcalá de Henares, el Gobierno de Madrid dispuso en 1874 que fuese destinado a presos comunes de hombres.

Sería durante el periodo en que el monasterio fue presidio cuando se acometieron obras para adaptarlo a su función carcelaria. Básicamente las obras se centraron en la demolición de la fachada oeste del claustro sur del que ya hemos hablado y la construcción de nueva fabrica de dos nuevas alas que cerrara el claustro norte, que hasta entonces, no se había llegado a cerrar por sus cuatro costados y estaba inacabado. Además se rodeó el monasterio con una pequeña muralla y unos pocos torreones para los guardias que aún se conservan. Se cegaron los arcos del claustro sur y se cubrieron con cal muchas salas del monasterio.

El Claustro norte o Patio norte

El patio norte es en la actualidad el resultado de la incorporación de sucesivas edificaciones construidas en diferentes épocas: desde los restos arquitectónicos de la alquería islámica de Rascanya y del monasterio cisterciense de Sant Bernat hasta un ala inacabada del segundo claustro jerónimo y los pabellones penitenciarios.

Los restos arquitectónicos del monasterio de San Bernat de Rascanya han quedado consolidados formando conjunto con el actual Monasterio. Lo más patente de ellos un arco apuntado gótico de lo que antaño fuera el claustro del convento cisterciense. Hay que decir que en el actual monasterio se utilizaron las piedras y sillares del anterior convento, por lo que poco podía quedar de él.

Sin embargo la parte más curiosa es el muro situado al este, en donde vemos una línea de lo que podrían ser ventanas y que en realidad son las portadas de las celdas que tendrían que formar un nuevo claustro de iguales características al que hemos visto. Este comenzó a construirse en 1756 pero por cuestiones económicas no se llegó a concluir el nuevo claustro y como tal quedó con sus portadas, los arranques de los arcos y el muro inacabado, paralizándose las obras en 1802.

Más tarde en el siglo XIX y durante el tiempo que fue prisión se acabaría de cerrar el claustro con dos nuevos lienzos, dándole su actual configuración claustral, que en definitiva no es más, como ya hemos dicho que un conjunto variopinto de estilos y épocas.

La orden Jerónima

Diversos focos eremíticos que tenían como ejemplo seguir a San Jerónimo en el desierto de Calcis; ante las críticas que recibían por su tipo de vida, según algunos propias de beduinos, decidieron regularizar su tipo de vida, y acudir al Papa. La decisión apareció prácticamente a la vez en territorios de Castilla y Aragón, y posteriormente en Portugal. El 15 de octubre de 1373 el Papa concedió la bula Sane Petitio a los castellanos, en la que les indicaba entre otras cosas, que en adelante seguirían la regla de San Agustín y usarían hábito blanco y pardo. Al año siguiente concedió lo mismo a los ermitaños valencianos.

Las casas eran independientes según la corona en la que estuvieran (Castilla o Aragón), pero en el primer capítulo general de la orden, celebrado en Guadalupe (Cáceres) en 1415, se dispuso la unión entre las distintas casas independientemente de su localización.

Frente a las órdenes mendicantes, que buscaban actuar sobre el mundo, los jerónimos mantienen la tradición monástica medieval de retirarse de él para rezar por su salvación. Siguen una vida apartada dedicada principalmente a la liturgia, las alabanzas divinas desde el coro, la contemplación y la hospitalidad que conlleva la caridad. La rama masculina de desarrolló en los límites estrictos de la Península Ibérica e Islas Baleares. Fueron llamados Religio Sancti Hieronymi Hispaniarum . Precisamente el carácter hispánico de la orden que indica su nombre explica su constante vinculación con la Monarquía Hispana.

Los decretos de desamortización y exclaustración de 1835 la llevaron a su desaparición. Tras diversos intentos, en 1946 se restauró la observancia en Santa María El Parral (Segovia). A esta iniciativa se sumó la de San Isidro del Campo (Sevilla, 1956), San Jerónimo de Yuste (Cáceres, 1958) y Santa María de los Ángeles de Jávea (Alicante, 1964). En la actualidad sólo quedan escasos monjes en Yuste y el Parral. En Valencia, la orden de los Jerónimos desapareció con el Monasterio de San Miguel de los Reyes.

Los fundadores: Germana de Foix y Fernando de Aragón duque de Calabria

El Duque de Calabria Fernando de Aragón (1488-1550) fue Duque de Calabria; es decir, jurado como heredero al trono de Nápoles (su homólogo español sería Príncipe de Asturias). En Valencia es recordado como Virrey de Valencia entre 1526 y 1550.

La deposición de su padre el rey Federico I de Nápoles (Fadrique) en 1501 y su propia claudicación meses después, puso fin a una experiencia dinástica de sesenta años iniciada por el rey de Aragón Alfonso V el Magnánimo. El adolescente Duque es hecho prisionero en 1502 por Gonzalo Fernández de Córdoba, el Gran Capitán y conducido a tierras hispanas detenido, pero por intereses políticos, el rey Fernando el Católico le nombra en 1506 lugarteniente general de Cataluña. Intenta escapar de Cataluña para restaurar sus derechos dinásticos en Nápoles, pero es detenido y acusado de alta traición, es enviado al Castillo de Játiva. Según las malas lenguas el duque de Calabria habría conocido a Germana de Foix cuando este era lugarteniente general de Cataluña y allí habría tenido un romance a pesar de ser la esposa del rey católico, y éste sería el verdadero motivo de su detención y posterior encierro en Játiva.

Encontrándose encerrado en la fortaleza como prisionero de lujo, los agermanados que habían tomado Játiva, le proponen unirse a su causa, cosa que él rechaza. El 13 de diciembre de 1521 el rey Carlos I le devuelve la libertad en premio por su lealtad. En 1526 contrae matrimonio en Sevilla con Germana de Foix (viuda primero del rey Fernando el Católico y más tarde desde 1525 de Juan de Brandeburgo). El 28 de noviembre de 1526 entran en la ciudad de Valencia como Virreyes y lugartenientes del Reino de Valencia, cargo que les había otorgado el rey Carlos I.

La pareja se establece en el Palacio del Real y allí Fernando de Aragón duque de Calabria que es un amante de las letras y de la música establece una pequeña corte de refinada cultura, promueve la actividad poética, escénica y musical. En este periodo virreinal se usa por primera vez el castellano en un documento oficial del Reino, Germana de Foix no hablaba valenciano y nunca tuvo interés en aprenderlo, por lo que era habitual escuchar el castellano en el Palacio del Real.

Germana de Foix fallece el 15 de Octubre de 1536, y el Duque vuelve a contraer matrimonio en 1541 con la viuda de Enrique de Nassau, doña Mencía de Mendoza, marquesa de Zenete, mujer ilustrada del Renacimiento discípula de Luis Vives, la cual se encuentra enterrada en el Convento de Santo Domingo de nuestra ciudad. Fernando de Aragón continuaría siendo virrey de Valencia hasta su muerte en 1550. Sus restos reposan en la cripta de la iglesia del monasterio.

Germana de Foix Virreina de Valencia entre 1523 y 1536. Úrsula Germana de Foix (* Foix, Francia 1488 † Liria, Valencia 08-11-1536) era hija de Juan de Foix y María de Orleans hermana del rey Luis XII de Francia, por lo tanto era sobrina del rey francés. Pertenecía a la dinastía reinante en Navarra, su tío el rey de Francia decidió casarla por intereses políticos con Fernando el Católico, viudo de Isabel desde 1504. La boda tuvo lugar en Dueñas en 1506, con anterioridad el matrimonio ya se había realizado por poderes. Germana de Foix hizo su entrada en la península por Barcelona y allí conocería al duque de Calabria que por entonces era lugarteniente general de Cataluña.

A la muerte de Fernando el Católico el 23 de enero de 1516 vino a España desde Flandes el futuro rey Carlos I (V de Alemania). A pesar de la diferencia de edad y el parentesco que les unía Germana de Foix y Carlos V mantuvieron un idilio e incluso se dice que tuvieron una hija en común de nombre Isabel. Germana de Foix era abuela no de sangre (abuelastra) de Carlos V. Para acallar las criticas Carlos V, casó a Germana de Foix con Juan de Brandeburgo (* 1493). La boda tuvo lugar en Barcelona en 1519. El rey Carlos nombraría en 1523 a Germana de Foix, virreina de Valencia y a su esposo el marqués de Brandeburgo Capitán General del Reino y lugarteniente de su esposa. De la relación entre ambos se sabe que fue muy tormentosa, el marqués maltrataba a su esposa y además era un mujeriego, de hecho su muerte se produjo a consecuencia de una enfermedad venérea el 5 de julio de 1525 en el Palacio Arzobispal de Valencia.

El 13 de mayo de 1526 contrae nuevo matrimonio en Sevilla con Fernando de Aragón, Duque de Calabria. Los padrinos son el rey Carlos I y su esposa. Como regalo de bodas les nombra a ambos virreyes de Valencia. Entran en la ciudad el 28 de noviembre de 1526.

En el testamento que redactó poco antes de morir indicó que su voluntad era que el monasterio de San Bernardo de Rascanya, pasase a manos de los monjes jerónimos y le sirviese de enterramiento. Amplia fue la dotación que dejó para tal fin. Su marido acogió como propio el proyecto y amplió el concepto de enterramiento al de panteón familiar. La comunidad jerónima llegó en 1546 y tras la muerte del Duque en 1550 la orden jerónima fue nombrada heredera universal de don Fernando. Germana de Foix murió de hidropesía en la Masía del Espinar, cerca de la población de Liria, entonces monasterio jerónimo y ahora como consecuencia de la acción desamortizadora decimonónicas, finca particular. En principio Germana de Foix fue enterrada en el Monasterio de San Bernat de Rascanya pero el 8 de junio de 1537 su esposo el duque de Calabria llevó sus restos mortales al Convento de Jesús, hasta tanto sus restos pudieran descansar en un monasterio jerónimo como había sido su voluntad.

Virreyes de Valencia en este periodo

• Diego Hurtado de Mendoza, conde de Mélito (Virrey de Valencia entre 1520 y 1523)
• Germana de Foix (virreina de Valencia entre 1523 y 1525 en solitario)
• Germana de Foix y Fernando de Aragón (virreyes de Valencia entre 1526 y 1536 juntamente)
• Fernando de Aragón (virrey de Valencia entre 1536 y 1550 en solitario)

De Monasterio a Biblioteca Valenciana

Pese a la dilatada existencia del edificio, las vicisitudes más azarosas llegaron tras la desamortización de 1835. Tras algunos intentos de demolerlo, y proyectos de convertirlo en parroquia, almacén para agricultores, fábrica de tabacos etc. en 1856 fue destinado a asilo de mendicidad. Tres años más tarde pasó a ser cárcel de mujeres y posteriormente de hombres (1874). En 1936 se destinó para presos políticos condenados a muerte, primero con la republica y luego con el franquismo, tanto de presos políticos como comunes. Dejó de prestar servicios carcelarios en 1966.

Tras esta fecha sirvió como colegio durante largos años, a la vez que almacén de objetos procedentes de embargos, pabellones de la feria de julio, etc. La década de los ochenta marcó el inicio de las intervenciones en el edificio tras diversos proyectos, y múltiples propuestas de uso. Actualmente y desde 1999 es sede de la Biblioteca Valenciana Nicolau Primitiu, aunque la creación jurídica de la Biblioteca es de 1985. La Biblioteca valenciana tiene como fin proteger y dar a conocer el patrimonio bibliográfico valenciano allá donde se encuentre.

El eje fundamental de su colección lo constituyen los legados de intelectuales valencianos como Nicolau Primitiu que legó 25.000 volúmenes, Amelia Comba, Mosén Josep Espasa, Badenes Dalmau, Adolf Pizcueta, Pere María Orts entre otros.

A ello se suman los fondos ingresados por depósito legal, habiéndose incorporado a su colección más de 45.000 monografías desde 1983, así como los fondos procedentes de la adquisición de bibliotecas o colecciones completas de autor, lugar de producción o asunto valenciano preferentemente.

En concreto, la colección actual de la Biblioteca dependiente de la Generalitat Valenciana cuenta con 2.562 manuscritos, 6.250 impresos de los siglos XV-XVIII, 160.000 monografías de los siglos XIX-XX, 9.000 títulos de publicaciones seriadas, 9.000 carteles, 30.000 postales antiguas, 200.000 documentos fotográficos, 30.000 dibujos originales y 6.000 unidades de material audiovisual. Está previsto que las instalaciones puedan albergar 2.000.000 de documentos.

Para la consulta de estos fondos la nueva biblioteca dispone de una sala de información bibliográfica, sala general de investigación, hemeroteca, sala de fondo gráfico y sala de reserva.

El Monasterio de San Miguel de los Reyes en el recuerdo